Nos réalisations Récentes
Découvrez certaines de nos réalisations reflétant notre savoir-faire et notre expertise en immobilier.
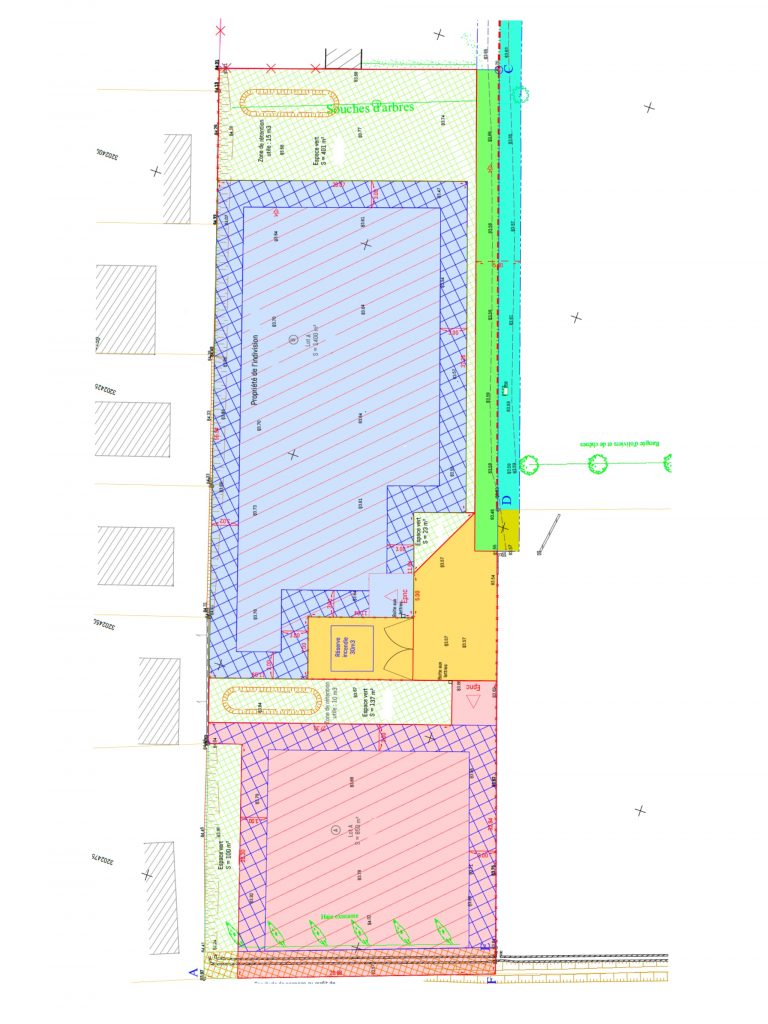
Un terrain divisé en 3 lots pour la création de deux maisons au Thor (84).

Une maison de 85m2 au Thor
Parcelle 294.

Une maison de 82m2 et son garage au Thor
Création d’une villa et son garage.

La pièce de vie de la maison de 82m2 au Thor
Carreau grand format, baie coulissante.

La salle d’eau
Zellige blanc, robinetterie couleur Or Carreau grand format type Terrazzo.
Construction d’une seconde maison au Thor (84) de 85m2

Une maison de 85m2 au Thor
Toupie et pompe pour couler des fondations.

Une maison de 85m2 au Thor
Création d’une seconde villa.

Charpente de la maison de 85m2 au Thor
pose des fermettes et des tuiles.

Toiture de la maison de 85m2
Pose des tuiles.
Division d’un terrain en 3 lots et rénovation d’une maison à Monteux (84)

Rénovation d’une maison
Placage BA13 des murs.

Rénovation de la cuisine
Changement de toutes les fenêtres en double vitrage, placage BA13, Plomberie, électricité.

Rénovation complète d’une maison
Nettoyage du terrain.

Prochain projet de division d’un terrain de 3400 m2 à Pernes les fontaines (création d’un petit lotissement)
Division en deux lots (respect du choix des vendeurs) d’un grand terrain. (En cours de réalisation).
Les projets qui nous inspirent
Votre terrain est trop grand et vous souhaitez le diviser, vous avez une maison à rénover complètement ou partiellement, contactez-nous !



Vous souhaitez diviser votre terrain ? Mais vous ne savez pas comment faire ?
Pas de panique, nous pouvons vous accompagner dans toutes les démarches.
- Etude de faisabilité (étude du PLU)
- Vérification que le terrain peut être desservi par les réseaux
- Consultation d’un géomètre à nos frais
- Demande des autorisations d’urbanisme
- Démarches fiscales et cadastrales
- Achat et construction

Nous respectons vos besoins, par exemple vous nous proposez un terrain issu d’une partie de votre jardin et ne souhaitez pas de construction R+1 pour ne pas avoir de vis à vis. Pas de problème, nous le faisons inscrire dans l’acte de vente afin d’éviter toute déconvenue.